消防明杆閘(zhá)閥

消防明杆(gǎn)閘閥

産品型(xing)号:Z41X 

公稱通徑(jing):DN50-300mm 

公稱壓力:PN1.6~2.5MPa 

适(shi)用溫度:0~80℃ 

适用(yong)介質:水 

閥體(ti)材質:球墨鑄(zhù)鐵等 

驅動方(fāng)式:手動、電動(dong)、氣bt天㊙️堂新版中文在线地址🌈動等 

法蘭(lan)标準:GB/T 17241.6、GB9113 

試驗标(biāo)準:GB13927 API 598

産品詳情(qing)

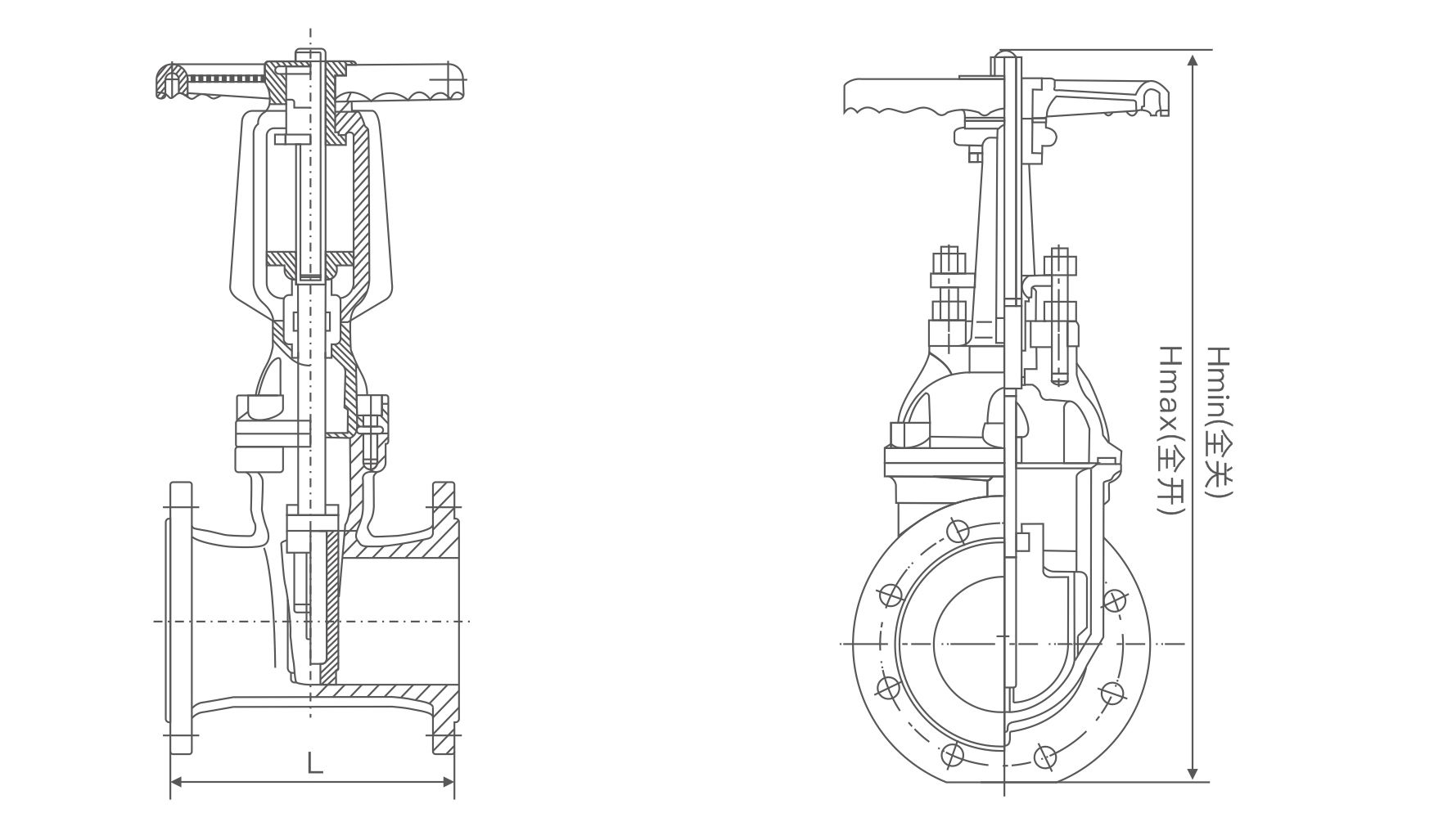
消(xiao)防明杆閘閥(fá)的閘闆随閥(fá)杆一起作直(zhi)線運動,通常(chang)在升降杆上(shang)有梯形螺紋(wen),通過閥門頂(ding)端的螺母以(yi)及閥體上的(de)導槽,将旋🌏轉(zhuǎn)運動變爲直(zhí)線運動,也就(jiu)是将操作轉(zhuǎn)矩變爲操作(zuò)推力。轉動手(shou)輪,通過手輪(lun)與閥杆的螺(luó)紋的進退提(ti)升🌈或下降與(yǔ)閥杆鏈接的(de)閥闆達到㊙️開(kai)啓和關閉的(de)目的。明杆閘(zhá)閥的啓閉件(jiàn)是閘闆,閘🔞闆(pan)的運動方向(xiàng)與流體方向(xiàng)相垂直,閘閥(fa)隻能作全開(kai)和全關,不能(néng)作調節和節(jie)流。


明杆彈性座(zuò)封閘閥(圖1)


主(zhu)要外形連接(jie)尺寸

DN

50

65

80

100

125

150

200

250

300

350

400

L

178

190

203

229

254

267

292

356

381

406


産品推(tui)薦


地址:江蘇(su)省南京市玄(xuán)武區紅山路(lù)88号3-414室
手機:13913847330
E-mail:[email protected]
網(wǎng)址:http://dj33.cc
友情鏈接(jie): 百度 三精閥(fa)門 上海滬工(gong)閥門 良工閥(fá)門 上海良工(gong)閥門
Copyright © 2022-2023 南京博(bó)高閥門有限(xian)公司 版權所(suǒ)有     京ICP證000000号   蘇(sū)公網安備 32010202011315号(hao)  
網站建設: 豐(feng)盛科技    
咨詢(xún)在線客服

添加微信(xìn)